聲學處理案例-音響視聽空間設計
Hi-Fi聆聽室和家庭劇院的音場處理,主要針對室內殘響時間RT60以及解決Flutter回音的問題,設定正確的殘響時間對于要求最好的音場環境來說,比其他聲學參數更重要,當然,第一反射音的處理也必需執行,這是為了防止梳形濾波的不好效應。

設計分析
進行房間模式Room Mode分析以確保房間中的聲音品質非常重要。 在30Hz和160Hz之間,重合的駐波模式會引起明顯的聲音染色。 該房間內低頻染色的程度受到所有當前駐波分佈的影響。 如果具有均勻分佈的模式,那么與在相同頻率下將模式集中在一起的情況相比,我們所遇到的問題就少了。

應用低音陷阱系統改善房間的低頻響應,控制房間的自然共振。 應該非常有效地降低引起房間不同部分聲壓級變化的頻率相互作用。 我們的處理也將在正切模式和斜角模式上有效。 房間內的聲音有很大的改善。

殘響時間將自身反映為聲音衰減到比其原始聲級大約低60dB所花費的時間,換句話說,就是聲音在室內消散所花費的時間。
處理的注意力集中在側壁和天花板上,以便在房間內獲得最佳音質。天花板是進行聲學處理時要考慮的最重要方面之一。它佔據了房間最大的區域,首先反射首先到達天花板,然后才真正到達聽眾的耳朵。在這種情況下,建議天花板前段使用Cinema圓形劇場來吸收第一次反射,并在聽音位置(天花板后段上方)使用Multifuser DC2擴散,它將擴散入射能量,擴大最佳聆聽位置。
在前牆上,使用了Cinema Round圓形劇場面板,目的是控制這些表面上的反射以及平衡殘響時間RT。結合使用Multifuser Wood 64,擴散后期反射能量,同時增強立體感。
在側壁上,使用Cinema Round圓形劇場面板吸收第一次反射,并使用Multifuser Wood 64面板,在平衡殘響時間RT的同時,嘗試在聆聽位置獲得更多的聲音包圍感。
在后壁,使用Multifuser Wood 64,以及Cinema Round圓形劇場面板,以很好地控制反射并有助于聆聽區域的聲音包圍感。為了控制低頻,建議使用低音陷阱系統,考慮了房間將具有的不同聲學模式。低音陷阱系統應位于聲學模式最大壓力的位置。在這種情況下,建議將我們最好的低音陷阱Super Bass Extreme與Wave Wood Bass陷阱結合使用,置于房間四個角落,由地板直上天花板。
以下報告詳細評估聲學處理前后的預期殘響時間。

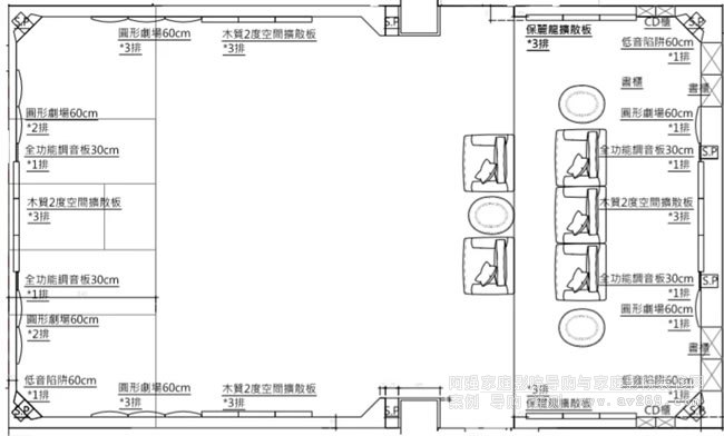
音場處理設置規劃圖

1.正面墻壁使用Vicoustic圓形劇場控制該表面的反射作用,採用MultiFuser Wood木制擴散板平衡殘響時間。

2.聆聽位置上方裝置高密度保麗龍擴散板DC2,背牆面也使用Wavewood , MultiFuser Wood擴散板,處理反射音及聆聽位置的音場營造。

3.左/右側牆前半部與正面牆處理方式相同,擴散的音場可以為房間增添生動活潑的音樂品質。

4.左/右側牆后半部聆聽區裝置高密度保麗龍擴散板DC2,增加空間感,角落有由地板直上天花板的低音陷阱。

6.天花板佔有室內反射面很大的面積,聲波打到天花板可能比直接送到耳朵還快。天花板前半部裝置Vicoustic圓形劇場控制該表面的反射作用。

7.天花板后半部在聽音位置使用Multifuser DC2擴散,它將擴散入射能量,擴大最佳聆聽位置。




















