家庭綜合布線的理念
家庭布線是一個不大不小的工程。之所以說不大,是因為這類工程對于網絡公司來說太小了,一般不愿意接這樣的工程,除非是工程量很大的小區綜合布線;之所以說不小,是因為它對于一般的裝修工程中的電線布線來說,又是非常專業和復雜的工程。除非是一個設計完善的小區寬帶綜合布線,要不然普通的新居裝修工程中遇到的網絡布線都是由房主自己解決。影音咨詢電話:13241902523
家庭網絡布線不是隨便哪個裝修公司或裝修工程隊都能解決的問題,這點筆者多有感觸。筆者曾經在多次為家庭用戶進行電腦網絡維護時遇到過麻煩。許多家庭網絡布線都是裝修工程中順帶進行的網絡布線,沒有專業的網絡工程師進行指導而遺留下來許多問題。如:網線線序不對;信息模塊打錯;有的更離譜,將所有有色的網線和白線分別接成兩股,象兩根電線一樣;走線設計與強電合在一起走;材料低劣等等。

下面是一個典型的普通家用綜合布線系統的組成示意圖:

該系統是由一個信息接入箱、各種線纜以及各個信息出口的標準接插件的級成,各個功能部件采用模塊化設計和星形拓樸結構,各個模塊和各個線路相互獨立,單個線路出現故障,不會影響其它信息家電的使用。家庭綜合布線系統的分布裝置由模塊化的信息接入箱來擔作.主要包括:網絡模塊、電話模塊、電視模塊、影音模塊四大模塊,有部分有能力的家庭還可以增加防盜報警的監控模塊。根據用戶的實際需求可以在各個功能模塊上接入、分配、轉接和維護管理,從而支持電話、上網、有線電視、家庭影院、音樂欣賞、視頻點播、安防報警等各種應用。影音咨詢電話:13241902523
[page]家庭綜合布線的幾大組成模塊
家庭綜合布線的組成模塊也就是信息接入箱的功能模塊條,它們管理著各種信號輸入和輸出的連接,所有的各條來自房間各角落接口插座上的線路集中連接入各個對應功能模塊的背面,有的模塊有正面插口,它與房間角落對應插座的接口是一致的。另外還包括各房間的接口模塊(俗稱:插座)。
1.網絡模塊
網絡模塊由一組5類RJ45插孔組成,主要實現對進入室內的電腦網絡線的跳接。來自房間信息插孔的五類網線按線對的色標打在模塊的背面對應插座上,前面板的RJ45插孔通過RJ45跳線與小型網絡交換機連接。我們可以將5口的小型交換機裝在信息箱內,最好是鐵殼的交換機,有利于通過箱體散熱。ADSL MODEM也可以放在箱內。
2.電話模塊
電話模塊與數據模塊其實是一樣的,也是采用一組5類RJ45插孔將進入室內的電話外線復接輸出,為一進多出,輸出口連接至房間的電話插座,再由插座接至電話機。此模塊采用5類RJ45接口標準,如室內布線使用五類雙絞線,亦可用于電腦網絡連接。
在實際布線工程中經常采用網絡線來作為電話的水平布線,安裝時將4對五類雙絞線中的 一對蘭白線當作電話使用,使用時只需在兩端的RJ45插孔插上RJ11電話線即可。亦即網絡和電話可能通用,互相備份,它是一舉兩得的做法。(圖3)
3.電視模塊
電視模塊其實是一個有線電視分配器。如圖4,本模塊由一個專業級射頻一分四的分配器構成。
4.影音模塊
影音模塊可以實現各房間的影音共享。如圖5的影音模塊由四組視音頻螺絲接線排組成,為一進三出,由三個撥位開關分別對應三組出線的連通控制,實現信號輸出口與信號輸入口復接或斷開。
將視音頻(視:V、右聲道:R、左聲道:L)輸入信號線接入端口,輸出信號線也接入相應輸出端口。每個輸出端口在面板上有一組三位的可上下撥動的開關(相應數字“1”、“2”、“3”,往下為閉合,標示為“ON”)可分別控制3路輸出信號與輸入信號的復接、斷開。這樣可以多個房間共享一臺VCD/DVD機影音播放。
5.數據/語音插座
正如上面提到的,在布線工程實踐中,通常對數據和語音布線采用統一的超五類網線布線方法,這樣線路的兩端也采用相應的RJ45信息模塊來端接。因此數據/語插座是采用統一的RJ45雙口息插座,一口用作網絡,一口用作電話。
6.視/音頻插座
音視頻插座面板包含一個視頻口,一個左聲道,一個右聲道(V/R/L )。

7.有線電視插座

如下圖為普通家庭的信息接入箱中四大功能模塊連接效果圖。

安裝前的規劃、設計和準備工作
信息接入箱一般安裝在房子的入口處,嵌入墻壁里面。管線及插座的安裝位置根據用戶自己的生活習慣及家電、家具的擺放位置確定。
相關安裝材料的名稱:
超5類非屏蔽雙絞線;
75Ω同軸電纜及75Ω電視插座;
視音頻線及三孔視音頻插座(對于音響發燒友,應選用好的線材及插座,如:鍍金的);
超五類RJ45信息插座;
PVC管,墻內插座暗裝盒等輔材;
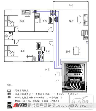
如下圖為普通的3房2廳家庭住宅綜合布線平面圖:

安裝材料、數量的確定方法
以普通的3房2廳家庭住宅為例,有以下信息點:
4部電話插口(客廳+主臥室+書房+衛生間)
4臺電視插口(客廳+主臥室+書房+客房)
4個網絡數據口(客廳+主臥室+書房+客房)
3個視音頻插口(客廳+主臥室+客房)
[page] 管線經過PVC管裝在地板下,插座暗在離地30公分的墻壁上。實際安裝過程中,應考慮留有余量,暗裝盒一般留有30CM,信息接入箱內留有50CM。假設各種信息插座到信息接入箱的平均距離為25米,簡單計算即可得出材料精單。

安裝步驟及方法
——確定位置
——預埋箱體
——鋪設PVC管,預埋暗裝底盒(在管中穿過牽引用的鐵線,在底盒處和信息箱露鐵線)
——穿各種線纜加標識
——理線、扎線(留有余量)
——壓接并插上RJ45、RJ11、75Ω同軸等插頭
——測試
選中安裝位置后,箱體埋入墻體時其面板露出墻面約1厘米,方便以后抹灰。兩側的出線孔不要填埋,當所有布線完成并測試后,才用石灰砂封平。穿線時,至少應預留一定長度在信息接入箱體內,具體要求如下:(從進線孔起計算)75Ω同軸電纜預留25厘米,五類雙絞線預留30厘米,外線電話線入預留30厘米,視音頻線預留30厘米。

總 結:
總的來說,采用家用綜合布線系統進行家居布線起碼具有如下的幾點優勢:
1、規范施工,能確保家裝中弱電在現在和將來的使用,不會再因為將來有新的應用而對裝修進行破壞;
2、采用統一控制和管理,在以后的日常生活中,使用、管理、維護、擴展十分方便;
3、系統兼容性很好,系統中網絡布線,不僅可以支持網絡,還可以支持電話、安防報警,擴展性強;
4、即插即用,只要有新的家電和信息設備,只能插上相應接口,并在信息接入箱相應跳線,就能組成通路。



















