打造一個沉浸感十足的家庭影院,是許多影音愛好者的夢想。然而,從復雜的設備選購到專業的設備安裝調試,整個過程充滿了挑戰與“陷阱”。任何一個環節的疏忽,都可能讓您投入的精力與金錢付諸東流,最終效果大打折扣。別擔心,這份詳盡的避坑指南將為您保駕護航。我們將從前期規劃、核心設備選購、音效優化、智能集成直到預算管理,為您系統性地揭示各個環節的常見誤區,并提供專業的解決方案,助您輕松繞開彎路,一步到位地構建出效果卓越的理想型私人影院。
一、前期規劃:決定成敗的關鍵第一步
1、忽視空間聲學處理:隔音與吸音擴散的重要性
一個常見的誤區是認為只要音響夠好,音效就一定出色。然而,未經處理的房間會產生聲音反射、駐波和共振,嚴重影響音質清晰度和聲場定位。您需要關注兩個核心概念:

2、房間比例無所謂?
關于房間房型尺寸,很多人覺得莫名其妙,本來能拿出了做家庭影院的房間就不大,再改造一下更小了得不償失。但是,當你把家庭影院組建好以后,發現不論怎么調整,低頻都是轟隆隆的駐波,聽得頭暈腦脹上吐下瀉,才會想起房間比例有問題。
推薦房型比例(注:黑粗線上為最佳比例,陰影區域均為合理范圍)
我們推薦最佳的房間形狀是長方形(干萬不要選用房間長寬高比例為整數倍的房間做視聽室,否則強烈的駐波會讓您前功盡棄),拒絕使用正方形、弧形及其他不規則形狀的空間做完影音室。
原因是正方形、弧形這些空間都會產生嚴重的聲學缺陷,為后期的聲學設計帶來巨大的困難,在花費數倍精力、時間、金錢的情況下,取得的結果仍然不盡如人意。
L形房間結構不對稱,會對聲場形成干擾,影響聲場均勻度,使得聽音者的聲場定位有偏差。
弧形房間會造成聲能過分集中,使聚集點的聲音嘈雜,而其他區域聲音較低,擴大了聲場不均勻度,嚴重影院聽眾的聽音條件。
建議一定要重視房間比例,如果是房間長寬高比例為整數倍或其它形狀的房間,那就得改變房間某一邊或者更多邊的尺寸,盡可能地減少共振頻率疊加,尤其是軸向模式,目標就是獲得更均勻的模態分布,盡可能達到建議的共振頻率間隔>5%,這些所選的原始空間如果解決不了就需要聲學設計階段進行處理,前提是盡量選擇良好比例的房間來做影音室。
3、盲目追求大尺寸:畫面與觀看距離的匹配原則
“越大越好”是選擇屏幕時最容易陷入的誤區。過大的屏幕在較近的觀看距離下,不僅會使您無法看全整個畫面,還容易因看到像素點而產生眩暈感,破壞沉浸式體驗。在規劃時,您應根據座位的觀看距離來確定理想的屏幕尺寸。您可以參考以下行業建議:
追求強烈臨場感:可以按0.03 × 屏幕尺寸(如100寸→3.0米)來規劃。
追求輕松舒適:可以稍微拉遠一點,按0.037 × 屏幕尺寸(如100寸→3.7米)來安排。
按畫面分辨率選擇(最科學)
這是更科學的算法,因為高分辨率允許你坐得更近,享受更大視角,同時不會看到像素點。簡單來說:分辨率越高,就能離得越近。
4K分辨率:最佳視距可以縮短到屏幕高度的1.5倍左右。
1080p分辨率:最佳視距約為屏幕高度的3倍左右。
阿強認為根據畫面大小和房型擺位可以在4K和2K分辨率推薦的區間來調整適合自己的觀影位置。
按視聽比例選擇(最發燒)這個方法將畫面和聲音結合起來考慮。在規劃座位時,可以保證座位與左右主音箱形成一個60°左右的夾角,這樣能獲得最準確的聲音定位。在此基礎上,再根據這個距離反過來推算適合的畫面尺寸
選擇一個合適的尺寸,確保畫面能舒適地充滿您的視野,這才是獲得影院感的關鍵。
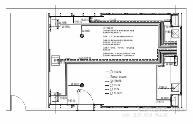
3、電源與布線規劃不足:預埋管線與專用電路
家庭影院系統涉及眾多設備,對電源和布線的要求遠超普通家電。如果在裝修時沒有進行預先規劃,后期裸露的線材不僅影響美觀,更可能帶來安全隱患和信號干擾。

二、核心設備選購:避開常見誤區,理性投資
進入設備選購環節,您會面臨紛繁復雜的技術參數。請記住,理性投資的關鍵在于“平衡”與“適配”,而非盲目追求頂級配置。每一分預算都應用在能顯著提升您觀影體驗的刀刃上。
1、投影機選擇:亮度、對比度與分辨率的權衡
選擇家庭影院投影機時,切忌陷入單一參數的誤區。這三個核心指標需要根據您的實際環境進行綜合權衡。
2、音響系統配置:聲道布局與音箱類型選擇
一套優秀的家庭影院音響系統是沉浸感的核心,其配置需要與您的空間大小和預算相匹配。


天空聲道必須物理,拒絕純反射
低音炮至少 2 只,多炮陣列更優
功放必須支持全景聲 + IMAX Enhanced
必須有聲場校準功能(Dirac/Audyssey/YPAO/RC)
大空間的音箱要配置純后級
3、功放與播放器:兼容性與未來升級考量
功放(AV接收機)是整個家庭影院系統的神經中樞,而播放器則是內容的源頭,它們的選擇直接影響系統的穩定性和擴展性。
正確方案:
清單1:檢查HDMI接口版本。 這是決定你系統未來擴展性的關鍵。務必選擇支持HDMI 2.1標準的功放。這不僅是為了未來的8K電視,更是為了當下支持4K@120Hz高幀率的游戲主機(如PS5, Xbox Series X)和播放設備。
清單2:解碼能力是核心。 確認功放是否支持最新的沉浸式音頻格式,特別是杜比全景聲(Dolby Atmos)和DTS:X。沒有它們的解碼能力,你就無法體驗到來自頭頂的“天空聲道”,聲音的立體感和包圍感會大打折扣。
清單3:關注自動校準技術。 這是普通用戶獲得好聲音的“黑科技”。主流的房間聲學校準技術,如Audyssey、Dirac Live、YPAO、ARC等,能通過麥克風測量你房間的聲學缺陷,并自動進行補償。一個帶有優秀校準功能的功放,其效果遠勝于一臺徒有大功率的“傻瓜”功放。
不要過度依賴投影機或電視內置的智能系統,一臺獨立的高性能播放器能提供更流暢的體驗和更全面的格式支持。
高性能播放器推薦:4K藍光碟機和硬盤播放機,加上網絡盒子Apple TV 4K 和 NVIDIA Shield TV Pro 是2026年依然強勁的選擇。它們擁有強大的處理核心、完善的App生態和對各種高規格音視頻格式的良好支持。
流媒體平臺支持:在選擇時,要確認設備是否支持你常用流媒體平臺(如Netflix、Disney+)的最高規格,例如杜比視界和杜比全景聲。
網絡要求:穩定播放高碼率的4K甚至8K流媒體,對網絡要求很高。我們強烈建議使用千兆有線網絡連接你的播放器,以避免無線網絡可能出現的卡頓和緩沖。
三、顯示設備:投影幕布與電視的選購陷阱
畫面的呈現是家庭影院體驗的最終載體,選擇投影幕布或大尺寸電視時,參數的背后隱藏著許多容易被忽視的細節。錯誤的搭配不僅會浪費投影機或播放器的高性能,更會直接影響觀影的沉浸感。
1、投影幕布:增益、材質與尺寸匹配
選擇投影幕布時,切勿認為“越大越好”或“越貴越好”。您需要關注以下幾個關鍵匹配點,以確保它能與您的投影機和環境相得益彰:

2、大尺寸電視:刷新率、HDR與接口配置
如果您選擇大尺寸電視作為顯示設備,除了分辨率外,以下三個技術規格直接決定了動態畫面的流暢度和色彩表現力:

3、光源與環境光:如何避免畫面失真
無論是投影還是電視,環境光都是影響畫質的最大敵人。忽視環境光控制,再好的設備也無法呈現出應有的效果。

四、音效優化:打造震撼聽覺體驗的關鍵
擁有了優質的音響系統,僅僅是成功的一半。正確的設置和校準,才是釋放其全部潛能,將您帶入身臨其境聲場之中的關鍵。聲音效果的優劣,直接決定了家庭影院的沉浸感,因此請務必重視以下優化步驟。
1、音箱擺位:立體聲場與環繞效果的秘訣
音箱的物理位置是構建精準聲場的基礎,錯誤的擺放會讓昂貴的設備效果大打折扣。請遵循以下基本原則進行設置:
2、低音炮配置:數量、位置與頻率響應
低音炮負責營造電影中的震撼感和氛圍,但其擺放極具技巧性,因為低頻聲波很容易在房間內產生不均勻的“駐波”。
3、聲場校準:自動與手動調試的技巧
現代功放大多配備了自動聲場校準系統(如Audyssey, YPAO, Dirac Live等),這是您優化音效的得力助手。

五、智能集成與片源:提升便利性與內容體驗
一套出色的家庭影院系統,不僅需要卓越的音畫表現,便捷的操作和豐富的高品質內容同樣至關重要。當硬件設備就位后,下一步就是將它們無縫整合,并確保有源源不斷的高清片源,這直接決定了您的日常使用體驗。
1、智能中控系統:設備聯動與場景設置
您需要避免陷入“遙控器地獄”,為投影機、功放、播放器和燈光各配一個遙控器會極大削弱觀影的樂趣。正確的做法是投資一套智能中控系統,實現所有設備的聯動。通過預設“觀影模式”、“音樂模式”等不同場景,您可以一鍵完成所有操作:燈光緩緩變暗、幕布自動降下、投影機與功放同步開啟并切換到正確的輸入源。這不僅提升了便利性,更營造了專屬的儀式感。
2、片源獲取:正版高清與區域限制
高質量的硬件需要同樣高質量的片源才能發揮其最大潛力。您應當優先選擇4K UHD藍光光盤或主流的流媒體服務(如Netflix, Disney+, Apple TV+等)來獲取正版高清內容。它們能提供最佳的畫質和杜比全景聲(Dolby Atmos)等次世代音軌。請注意,部分流媒體內容存在區域限制,可能需要通過特定網絡服務解決。避免使用低碼率的盜版資源,它們會嚴重浪費您的設備性能。
國內目前主流的除藍光播放器外便是硬盤播放機加影庫功能或者使用硬盤拷貝及CD2掛載網盤等。
3、網絡帶寬:流暢觀看的保障
對于依賴流媒體的家庭影院而言,穩定且高速的網絡是基礎保障。觀看4K HDR內容通常要求至少25Mbps的穩定帶寬,而考慮到家中其他設備同時聯網的需求,建議您預留100Mbps或更高的帶寬。為保證信號穩定,應優先使用有線網絡連接您的播放設備(如Apple TV、NVIDIA Shield或藍光播放機),而不是Wi-Fi。
六、預算管理:避免超支與不必要的投入
一個清晰的預算規劃是您成功搭建家庭影院的基石,能有效防止因沖動消費而導致的超支。科學的資金分配不僅能讓每一分錢都花在刀刃上,還能確保最終的影音效果達到預期。
家庭影院避坑終極Checklist
在你最終敲定方案前,請逐一核對以下清單:
硬件選購檢查清單
空間布局檢查清單
隱蔽工程檢查清單
1、合理分配:核心設備與周邊配件的比例
在制定家庭影院預算時,明智的做法是將大部分資金(通常建議占總預算的60%-70%)投入到核心設備上。這包括直接影響畫質和音質的“三大件”:顯示設備(投影機或電視)、AV功放以及主音響系統(前置、中置和環繞音箱)。剩下的預算則可以分配給低音炮、播放器、線材、幕布以及聲學材料等周邊配件。這樣的分配策略能確保您在關鍵性能上不妥協,從而保障整體的觀影體驗。
2、長遠規劃:預留升級空間與兼容性
構建家庭影院不應只著眼于當下。在選擇設備,特別是AV功放時,要考慮其未來的升級潛力。例如,選擇支持最新音視頻格式(如Dolby Atmos、DTS:X)和更高規格接口(如HDMI 2.1)的功放,可以為您未來升級到8K顯示設備或增加更多聲道預留空間。這樣做雖然初期投入可能稍高,但從長遠來看,避免了因技術迭代而需要頻繁更換整套系統的成本。
3、避免過度消費:按需選擇,不盲目跟風
市場上的高端設備層出不窮,但并非所有功能都適合您的實際需求。在選購前,請冷靜評估您的使用場景和房間條件。例如,在一個較小的房間里,一套頂級的全景聲系統可能無法發揮其全部效果,反而造成浪費。您應該專注于那些能切實提升您觀影體驗的功能,而不是盲目追求參數上的“頂級配置”。記住,最適合您的,才是最好的。










