近年來,小型家庭影院的發展非常迅速,發展的需求越來越大。小空間一般復雜不規整,要想呈現出好的影音效果,小型家庭影院裝修設計也必然成為人們首先要考慮的問題。
小型家庭影院室內裝修對影院的聲音效果有非常大的影響作用,合理的空間體型及擴散,能有效解決回聲、聚焦、簡并等聲缺陷;合理的吸聲與擴散相結合,能使室內聲場均勻分布,能讓聲音空間感好,立體聲效果更強。

下面給大家看下之前做過的小型家庭影院的案例,希望能給大家一些參考。
此案位于北京昌平區沙河西岸的艷瀾新宸別墅區,本案影音室位于地下室空間,空間尺寸約寬3300、長5000、高2600。平面面積不到17平米,下水管 道、新風管道及空調錯落其中,尤其室內有兩道橫梁,梁下加管道只有2300高度,非常復雜!
原始圖:

小型家庭影院空間原始圖

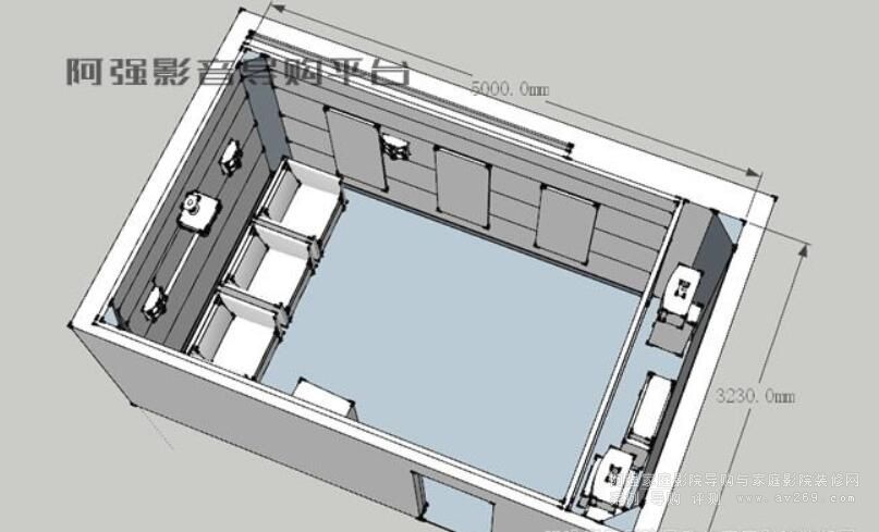
小型家庭影院空間規劃圖
在裝修方面,我們根據聲學環境填充吸音擴散材料(特別是第一反射區一定要處理),最后再做面層處理。
然后依據現場空間和影音功能的定位 規劃的空間排位示意,采用杜比全景聲7.2.2擺位布置,卡拉OK使用 2.0系統,配以效果器和MGR9820大功率專業功放。功放采用的是安橋RZ3100功放 11.2旗艦合并式功放,杰士經典的RF系列音箱 RF82 RF62C和R112SW超低音炮。

四只壁掛環繞和兩只杜比頂置喇叭,四人位觀影沙發,看起來空間比較緊湊

杰士經典的RF系列音箱 RF82 RF62C和R112SW超低音炮

由于空間比較 小,我們采用的是JK超窄邊畫框透聲幕,寬度133寸已經達到極限配合愛普生TW6300在小空間也可以享受大畫面。
總結:小型影院設計中的裝修設計處理對影院的效果非常重要,只有聲學效果和裝修設計相配合,才能打造出一個良好的聲學視聽環境和舒適的家居環境。



















