日本高端OS幕布品牌為您呈現真實的影像!做為高端幕布在國內資料比較少,阿強做為OS品牌幕布的授權經銷商有義務為大家提供更多的OS幕布產品的相關信息,今天阿強主要為朋友們展示OS幕布各類產品的尺寸及細節,這也是很多朋友經常會問的,在實際布置規劃的時候會經營用到,下面是部分信息請參考:

以下均默認均為日本官方信息,多為日文標注,中國國內正品在電壓等小部分細節可能會變化,具體已實物為準!
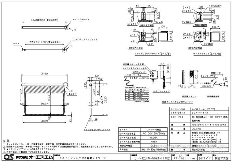
電動拉線幕布STP 16:9和2.35:1比例從100英寸到150英寸尺寸參考:
對應幕布WF302 WS103 HF102

日本OS幕布 電動拉線幕布尺寸匯總表 16:9比例

OS STP-100HM-MRK1-HF102 OS電動拉線幕 100英寸16:9 HF102幕料

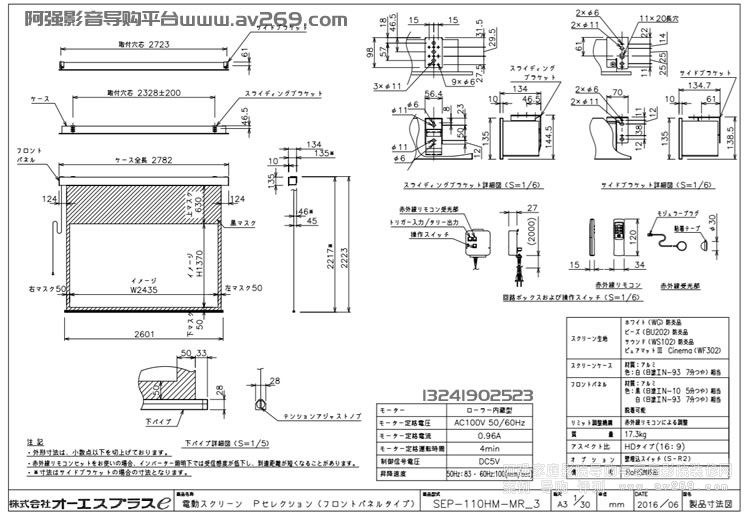
OS STP-110HM-MRK1-HF102 OS電動拉線幕 110英寸16:9 HF102幕料
OS STP-120HM-MRK1-HF102 OS電動拉線幕 120英寸16:9 HF102幕料

OS STP-130HM-MRK1-WF302 OS電動拉線幕 130英寸16:9 WF302幕料

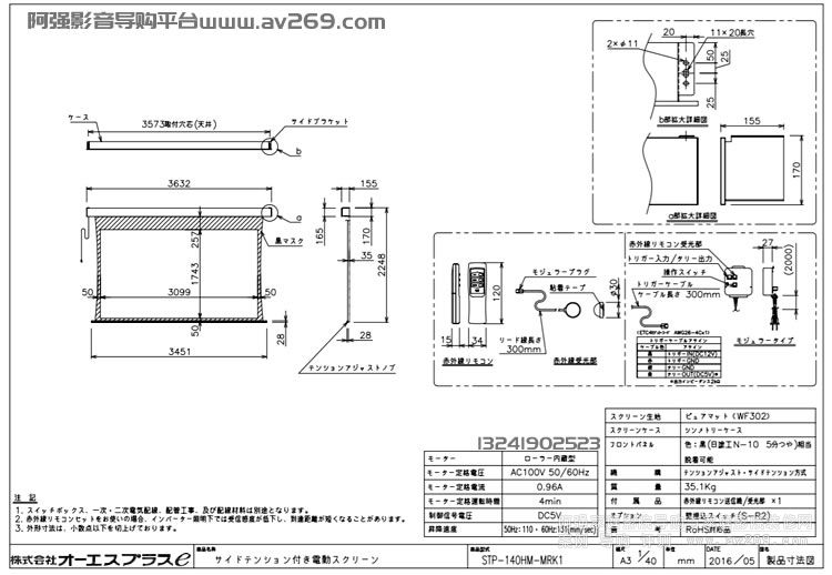
OS STP-140HM-MRK1-WF302 OS電動拉線幕 140英寸16:9 WF302幕料
OS STP-150HM-MRK1-WS103 OS電動拉線幕 150英寸16:9 WS103透聲幕料

OS 2.35:1電動拉線幕布尺寸匯總表
OS STP-120LM-MRK3-WF302 OS電動拉線幕 120英寸 2.35:1 WF302幕布

OS STP-130LM-MRK3-WF302 OS電動拉線幕 130英寸 2.35:1 WF302幕布

OS STP-140LM-MRK3-WF302 OS電動拉線幕 140英寸 2.35:1 WF302幕布
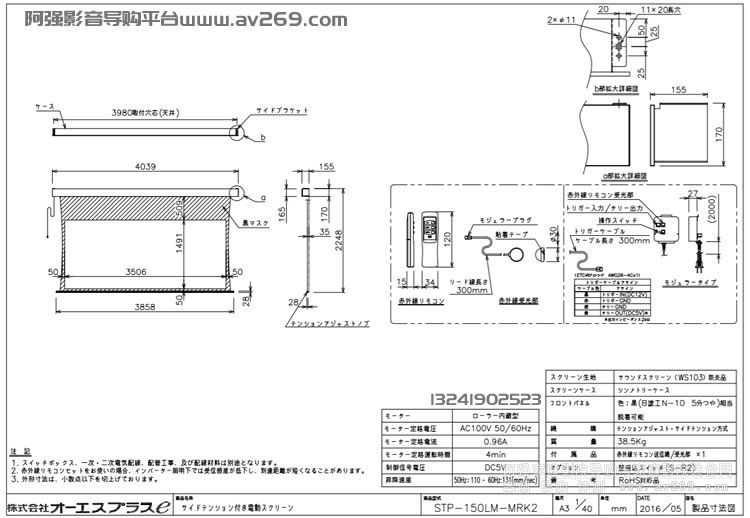
OS STP-150LM-MRK3-WS103 OS電動拉線幕 150英寸 2.35:1 WS103透聲幕布
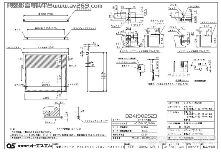
電動幕布SEP 16:9比例從100英寸到150英寸尺寸參考:
對應幕布WF204 BU201 BU202 WF302
OS SEP-100HM-MRW1-WF204 OS電動幕 100英寸16:9 WF204幕布
OS SEP-110HM-MRW1-BU201 OS電動幕 110英寸16:9 BU201幕布
OS SEP-120HM-MRW1-BU202 OS電動幕 120英寸16:9 BU202幕布
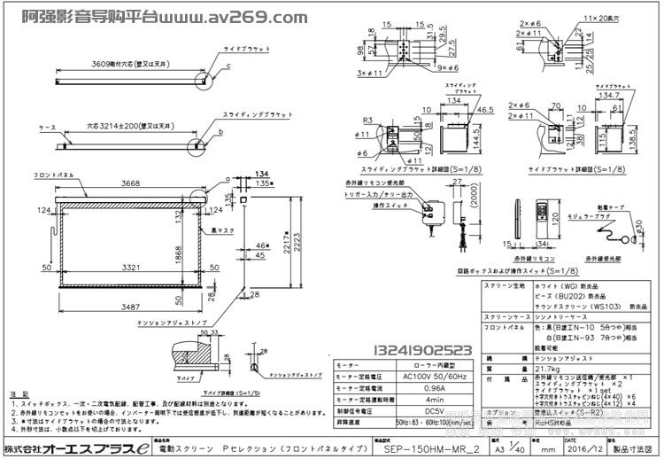
OS SEP-130HM-MRK1-BU201 OS電動幕 130英寸16:9 BU201幕布
OS SEP-140HM-MRW1-WF204 OS電動幕 140英寸16:9 WF204幕布

OS SEP-150HM-MRK1-BU201 OS電動幕 150英寸16:9 BU201幕布
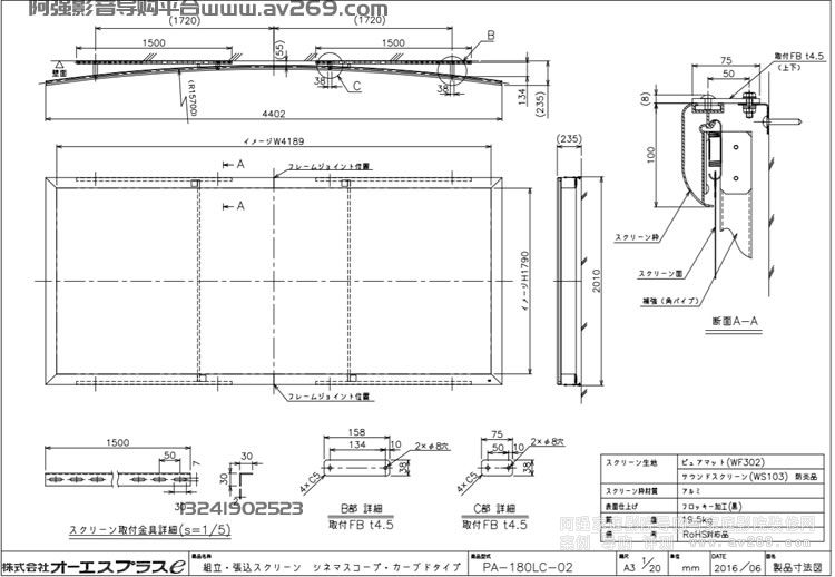
畫框幕布尺寸:
主要從100英寸到200英寸!比例有16:9 2.35:1 16:10等規格,默認為16:9
畫框的尺寸因為框架寬度是固定的,所以阿強不一一展示出來,只需要了解畫面尺寸外加框架的寬度即可,下面阿強展示部分圖紙信息供各位參考:
PA系列在WF302 WF204 HF102 BU201 BU202等幕料上,目前中國大陸地區默認框架為國內加工的請悉知。

日本OS畫框幕布尺寸匯總表(原裝框架)
OS PA-150H-01 150英寸16:9比例尺寸

OS PA-100H-01 100英寸16:9比例尺寸


OS PA-120LC-02 OS弧形畫框幕2.35:1 透聲幕 非透聲幕
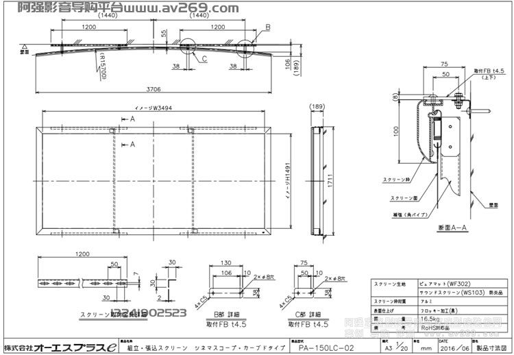
OS PA-150LC-02 OS150英寸弧形畫框幕2.35:1 透聲幕 非透聲幕
OS PA-180LC-02 OS180英寸弧形畫框幕2.35:1 透聲幕 非透聲幕

OS STF畫框幕布 畫框弧形幕布尺寸匯總

OS STF-200LC-02 WS901 OS200英寸2.35:1畫框弧形透聲幕

OS電動幕布SEG系列尺寸

OS SEG-180HM-W1-WG901 180英寸16:9電動幕布

更多銀幕尺寸請繼續關注阿強影音導購平臺,近期阿強為收錄到網盤供朋友們下載!













