[page]從裝修開始 看國外網友DIY家庭影院[/page] 編者按:最近一位國外網友在自己家中搭建了一套投影機為主體的家庭影院,在整個家庭影院的搭建中,這位網友全部自行設計圖紙和風格,并且也遇到了這樣那樣的問題,不過經過不斷的完善,最終搭建成功。這位網友的經驗非常值得大家分享,相信會對有心自行搭建家庭影院的朋友有所幫助。我們不僅引用了這位網友的介紹,而且還對它的選擇進行了技術上的分析,設計部分按照第一人稱進行敘述、而其他部分則主要以圖解為主。

裝修之前的房間平面圖
整個工程開始之前,我得想好到底家庭影院放在房間的哪個位置,空間的大小直接影響影院的聽覺效果,如何讓聽覺效果達到一種逼真的境地,選擇好影院的空間是非常必要的。長方形的房間在調制音效的和諧方面能起到獨特的作用,而我的整個房間周圍都是玻璃幕墻,所以只有左邊的墻壁適合放置投影屏幕,而且我得劃出一塊長方形的區域作為家庭影院的場地,但是如果在這里的話我就不得不處理三根麻煩的電纜管道。

麻煩的三根管道
這就是那三根麻煩的管道,在我的工人已經就位的情況下,我還沒有想好到底如何處理它們。

房間照片
站在家庭影院的選址上回頭看樓梯,好的設計不應該站在樓梯上的時候會看到空蕩蕩的墻壁或者直接看到我的家庭影院,這里的設計還是需要費一番心思的。

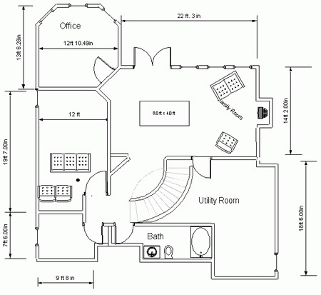
房間平面設計圖
這是經過重新規劃之后的房間平面圖,我希望家庭影院可以更寬一些,但是這樣它就會壓迫其他房間的空間,要知道我的房間不僅僅需要一個家庭影院,其他房間也必須要有足夠的空間。目前設計圖上的家庭影院面積應該足夠了。至于三根管道的處理, 我必須給他們加上裝飾,或者想辦法弄成一個花生吊燈的造型,總之得把它們隱藏起來。歡迎光臨小強家庭影院導購網www.2008wb.com

家庭影院平面圖
這是家庭影院部分的詳細設計圖。 在這里我需要詳細的進行規劃,包括屏幕的尺寸,投影機的懸掛距離和高度等等,當然各種線材的埋設、音響設備的擺放都是非常重要的,尤其是音響的擺放,這需要進行多次的調整。當然還有天花板的吊頂,光線的遮擋和燈具的擺放、這些都會影響到最后的效果。由于惱人的電纜管道我的投影機位置不得不遷就它,橫移了一段距離。
[page]家庭影院室的框架搭建[/page]

站在屏幕放置處觀察整個家庭影院

站在投影機懸掛處觀察整個家庭影院
家庭影院需要一個比較封閉的空間,這是出于兩個考慮:第一,這對整個家庭影院的效果,無論是顯示效果還是聲效都會比一個開放空間有所提升;第二,不會影響到其他人。所以獨立將影院用木制隔斷隔離出來。現在就可以看看屏幕和投影儀的懸掛和音響器材和座位的擺放地點了,多試幾次一邊達到最好的效果。

站在門口的看家庭影院
做了隔斷之后,從門口看起來就好了很多,多次試驗之后就可已開始著手懸掛投影儀了,這個時候需要注意的是:懸掛方式節省了室內空間,投影機意外受損的可能性也小。同時,由于投影機固定在一個地方,不必每次使用前都重新設置機器。缺點是移動不方便,而且需要仔細的考慮到地懸掛在什么位置。采用懸掛方式時,首先應該確定安放位置和屏幕之間的距離。不同投影機的發散比率不一樣,發散率是投影機和屏幕距離與圖像寬度之比。投影機和屏幕的距離越大,得到的圖像也越大。

開始懸掛投影儀

懸掛好的投影儀
開始布線,布線也是非常有講究的,既然選擇作一個家庭影院,就得又一個整體設計方案,不能讓線材在地面上或者墻壁上“爬著”,所以要將線材隱藏起來。當然選擇一套無線設備倒是可以解決這個問題,但是效果和價格都不太合適,這也與DIY優質廉價的要求不相符合。

粗大的金屬管幫助走線

粗大的金屬管幫助走線

粗大的金屬管幫助走線
[page]電線走線[/page]
除了音頻、視頻線之外,電源走線也是非常重要的。電源布線對音質的影響很大,雖然影音設備大多是“小功耗”設備,對電路的負荷影響不太大,但其他電氣設備在工作時卻可能對其造成干擾。因此音響的供電電路應單獨布線自成回路,并能提供較充足的功率余量和最低的電源內阻,以保證放音音質,特別是聲音的動態、力度、瞬態性能等。家庭影院擁有眾多設備,尤其是投影機因為高高懸掛在天花板上,所以不能總是插拔所以在觸手可及的地方安裝一個開關是十分必要的。另外由于本次設計中,大部分線材都是埋在墻壁和天花板里的,而且大部分采用了木制龍骨,所以電源線的選擇是很重要的。千萬不能選擇劣質線材否則一旦過熱起火是非常危險的。

隔斷上的電線走線

隔斷上的電線走線
供電電路應按設備總額定功率的兩倍以上設計、布線。最好采用音響專用電源插座。最好設置專用的音響電源濾波器,以進一步降低電源的干擾。若不便改裝專門的影音設備供電電路時,也可考慮加電源濾波器來降低電源干擾。

天花板的電線走線

天花板的電線走線
[page]墻壁處理[/page]
處理走線之后,就可已開始著手墻壁的裝修了,這里需要注意的就是墻壁不能太光滑,否則這樣會對反射聲音,嚴重影響效果,最好能選擇不太光滑且吸音的材質。從圖片的效果來看,作者的設計還是非常用心的,最后惱人的三根管道只剩下一根裸露在外面。
歡迎光臨小強家庭影院導購網www.2008wb.com

內部裝修和墻壁處理

內部裝修和墻壁處理

內部裝修和墻壁處理

內部裝修和墻壁處理

內部裝修和墻壁處理

內部裝修和墻壁處理

內部裝修和墻壁處理

內部裝修和墻壁處理

內部裝修和墻壁處理

內部裝修和墻壁處理
[page]進一步修飾[/page]

屏幕地地臺的龍骨制作

用沙子進行填裝對于吸音有很大好處

填裝完成

地臺和屏幕在一起

音響和電源控制箱

音響和電源控制箱

多出來的管道做成了一根柱子

吊頂

吊頂周圍安裝燈具

吊頂的最終燈光效果
[page]收尾和最終效果[/page]

為了配合柱子干脆再建個小舞臺

燈具

天藍色的吊頂

制作熒幕的吸音墻

制作熒幕的吸音墻

制作熒幕的吸音墻

投影機的最終懸掛

投影機的最終懸掛

吸音部分制作完成

就差屏幕了

中置音箱也安裝在了屏幕上方

燈光效果
遺憾的是這位網友沒有提供最終整個家庭影院完成的效果圖,不過到這里我們也能知道這個非常不錯的家庭影院已經基本完工了,怎么樣是不是有沖動想要自己DIY一個家庭影院了?



















